Capannone in affitto

Trevignano, Via Turcata - Case Cadorin
€ 7.500 / mese
7 locali 7 locali
1500 Mq 1500 Mq
2 bagni 2 bagni

Capannone in affitto

Trevignano, Via Turcata - Case Cadorin

Descrizione annuncio

Proponiamo IN LOCAZIONE capannone del 2022 in zona strategica.

COSA SAPERE DELL'IMMOBILE:

- Anno di costruzione: 2022

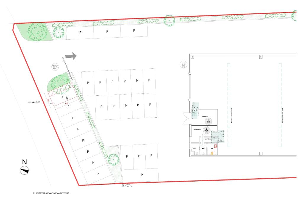
- Area di 1500mq circa di capannone

- Altezza media di 7,60mt

- Predisposizione per il carroponte con portata di 5t

- Portoni con apertura basculante: 4

- Piazzale esclusivo per manovra

- Parcheggi fronte capannone

- Ampio scoperto attorno all'immobile

- Fotovoltaico da 31,68KWp con contatore luce non attivo di 11KWh

- Pratica fotovoltaico da volturare al nuovo intestatario

- Contratto dell'acqua aperto, da volturare al nuovo intestatrio

- Per asporto rifiuti si dovrà aprire un contratto nuovo

- Canone di affitto soggetto ad IVA

Ideale per magazzino, deposito o attività industriale di vario tipo visto lo spazio disponibile e la posizione dell'immobile.

UBICAZIONE E CONTESTO:

L'immobile si trova in Zona Artigianale Turcata a Trevignano, a pochissimi chilometri dalla Superstrada Pedemontana Veneta e dalla Feltrina.

Mostra tutto

Nelle vicinanze

Trasporto pubblico Trasporto pubblico
Trevignano-Signoressa
Trevignano-Signoressa
1,4 Km
Trasporto pubblico
1,6 Km
Ricariche auto elettriche Ricariche auto elettriche
Parcheggio Municipio di Trevignano - Energoclub Onlus
1,2 Km
Scuole Scuole
Elementari di Falzè
1,3 Km
Istituto comprensivo Trevignano
1,3 Km
Scuole
1,4 Km
Scuola di ballo SalsEnergy
1,5 Km
Asilo - Scuola Materna
2,7 Km
Farmacia Farmacia
Farmacia
1,3 Km
Farmacia Fedele
2,7 Km
Supermercati Supermercati
Crai
1,6 Km
Supermercato Crai Bavaresco
2,7 Km
Eurospin
2,7 Km
Negozi Negozi
Replay Outlet
870 m
Panificio di Falzè
1,3 Km
Pasticceria Quaggiotto
1,5 Km
Noi giovani
2,6 Km
Panificio
2,7 Km
Bar Bar
RistoGrill
820 m
Bar stazione
1,5 Km
Mini Bar
1,5 Km
Bar Centro
1,7 Km
Bar
2,4 Km
Ristoranti Ristoranti
La Fattoria
1,2 Km
Agriturismo Villa Serena
1,3 Km
Trattoria Schiavon
1,5 Km
Boccon divino
1,6 Km
Grappolo d'Oro
1,9 Km
Mostra tutto

Caratteristiche

Rif.:
61088926
Piano:
1 di 1 (Piano terra)
Posti auto:
30
Condizionamento:
Predisposizione impianto
Ascensore:
No
Riscaldamento:
Assente
Mostra tutto
Prezzo Prezzo
€ 7.500 / mese
Spese annue Spese annue
€ 0

Classe Energetica

Questo immobile è esente da classe energetica
Anno di costruzione:
2022
Riscaldamento:
Assente

Ti interessa visionare l'immobile?

Fissa un appuntamento  Fissa un appuntamento

Richiedi informazioni

Clicca su Leggi per aprire l'informativa
* Questi campi sono obbligatori
Affiliato
Montebelluna Industriale Srl
Via Leonardo Da Vinci, 3 31031 Caerano Di San Marco (TV)

Il nostro staff


  • Marco Callegher
    Collaboratore

  • Edoardo Maria Cunzo
    Responsabile

  • Arianna Damiani
    Collaboratrice

  • Silvia Pasetto
    Affiliata
Via Leonardo Da Vinci, 3 31031 Caerano Di San Marco (TV)
Zona: Montebelluna-Valdobbiadene-Asolo-Borso Del Grappa e territori limitrofi
Mostra su mappa
Affiliato
Montebelluna Industriale Srl
Via Leonardo Da Vinci, 3 31031 Caerano Di San Marco (TV)

2026 Tecnocasa Franchising S.p.A. - P. IVA 08365160152 - Via Monte Bianco 60/A 20089 Rozzano (MI). Ogni agenzia ha un proprio titolare ed è autonoma. Privacy policy | Policy utilizzo | Cookie policy