Complesso in vendita

Feltre, Via Culiada
€ 320.000
605 Mq 605 Mq
4 bagni 4 bagni

Complesso in vendita

Feltre, Via Culiada

Descrizione annuncio

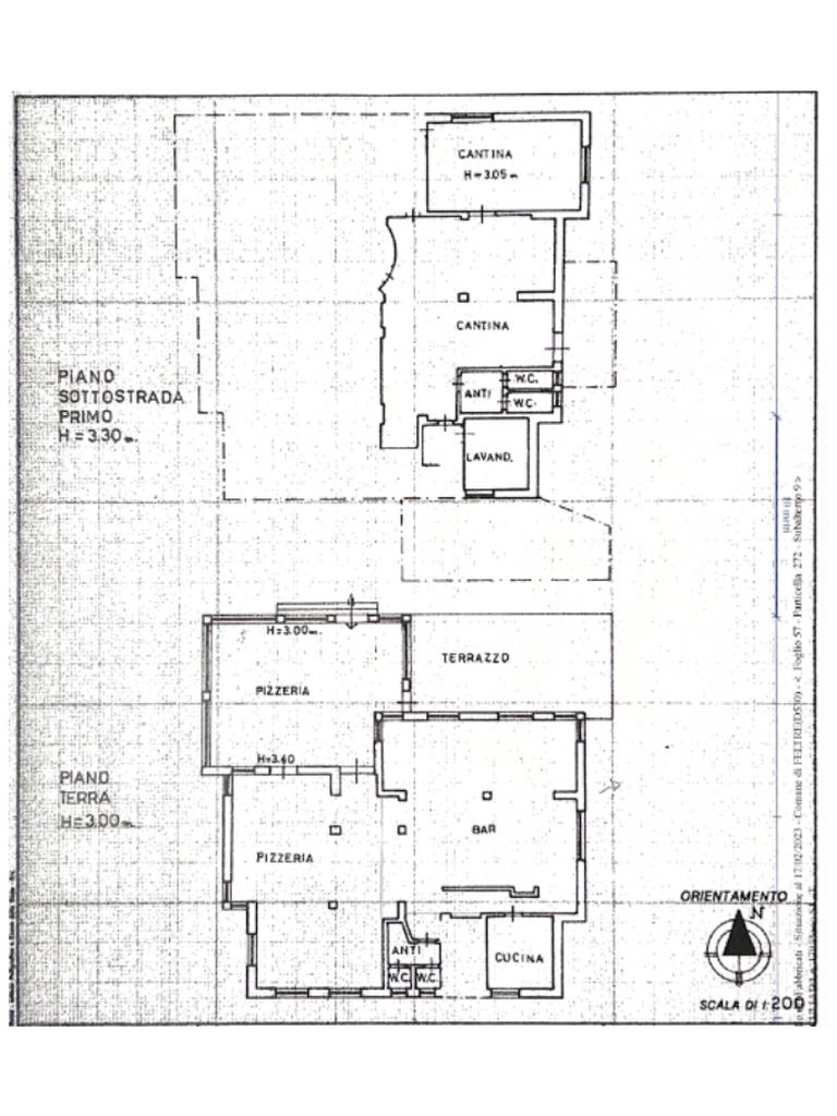
Proponiamo IN VENDITA questo immobile di 605 mq composto da 2 livelli ed ampio parcheggio.

DESCRIZIONE DELL'IMMOBILE:

Al piano seminterrato troviamo un appartamento con:

- cucina abitabile

- soggiorno con camino

- 2 camere da letto

- bagno finestrato

- ripostiglio, disimpegno e cantine

Al piano rialzato troviamo l'unità commerciale con:

- ampio ingresso

- due sale da pranzo spaziose e luminose

- sala bar

- zona cucina

- area pizzeria con forno a legna

- caminetto predisposto per barbecue

- servizi igienici

PREZZO RICHIESTO: 340.000€

UBICAZIONE E CONTESTO:

L'immobile si trova a pochissimi km dal centro di Feltre e dalla SS50, strada di grossa percorrenza tra la Feltrina e la Valsugana.

Per ulteriori informazioni non esitate a contattarci!

Mostra tutto

Nelle vicinanze

Trasporto pubblico Trasporto pubblico
Feltre Deposito
Feltre Deposito
1,5 Km
S.Lucia
S.Lucia
1,8 Km
Scuole Scuole
Scuole
830 m
Supermercati Supermercati
Crai
2,4 Km
Famila
2,6 Km
Negozi Negozi
Pane Latte
970 m
Bar Bar
Bar centrale
1,1 Km
Antica Oseria da Enza
1,2 Km
La sveglia
1,2 Km
Bar enoteca
2,3 Km
Bar
2,4 Km
Ristoranti Ristoranti
Pizzeria Speckeller
1,0 Km
Osteria Al Pentagono
2,8 Km
Mostra tutto

Caratteristiche

Rif.:
61091942
Piano:
2 (Piano su più livelli)
Posti auto:
50
Balconi:
1
Condizionamento:
Centralizzato
Ascensore:
No
Mostra tutto
Prezzo Prezzo
€ 320.000
Rata mutuo Rata mutuo
€ 1.508 / mese
Spese annue Spese annue
€ 0
Proponi il tuo prezzoProponi il tuo prezzo

Altre caratteristiche

Classe Energetica

Questo immobile è esente da classe energetica
Anno di costruzione:
1970
Riscaldamento:
Centralizzato
Tipo impianto:
A radiatori
Tipo alimentazione:
Metano

Ti interessa visionare l'immobile?

Fissa un appuntamento  Fissa un appuntamento

Richiedi informazioni

Clicca su Leggi per aprire l'informativa
* Questi campi sono obbligatori

Calcola il tuo mutuo

Semplice e senza impegno
Anticipo

( % )
Mutuo

( % )

pochi semplici passi

inserisci i tuoi dati
Questionario completato
Grazie per aver richiesto un appuntamento senza impegno con un nostro Consulente del Credito e Assicurativo.

Hai inserito correttamente tutti i dati necessari e a breve riceverai una e-mail con un link da convalidare per inviare i tuoi dati.
Affiliato
Montebelluna Industriale Srl
Via Leonardo Da Vinci, 3 31031 Caerano Di San Marco (TV)

Il nostro staff


  • Marco Callegher
    Collaboratore

  • Edoardo Maria Cunzo
    Responsabile

  • Arianna Damiani
    Collaboratrice

  • Silvia Pasetto
    Affiliata
Via Leonardo Da Vinci, 3 31031 Caerano Di San Marco (TV)
Zona: Montebelluna-Valdobbiadene-Asolo-Borso Del Grappa e territori limitrofi
Mostra su mappa
Affiliato
Montebelluna Industriale Srl
Via Leonardo Da Vinci, 3 31031 Caerano Di San Marco (TV)

2026 Tecnocasa Franchising S.p.A. - P. IVA 08365160152 - Via Monte Bianco 60/A 20089 Rozzano (MI). Ogni agenzia ha un proprio titolare ed è autonoma. Privacy policy | Policy utilizzo | Cookie policy