Capannone in vendita

Feltre, Via Dante Alighieri
€ 210.000
6 locali 6 locali
480 Mq 480 Mq
2 bagni 2 bagni

Capannone in vendita

Feltre, Via Dante Alighieri

Descrizione annuncio

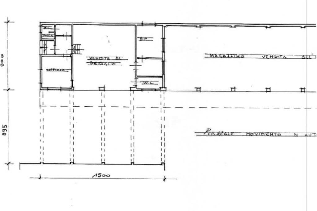
Nel comune di Feltre è disponibile un capannone in vendita, ideale per chi cerca uno spazio ampio e funzionale.

DESCRIZIONE DELL'IMMOBILE:

- Categoria catastale D/8

- Superficie di 480mq del capannone + 1152mq scoperto

- Costruito nel 1960

- Carroponte esterno da 5,8ton

- Zona ufficio, lavoro, magazzino

- Ampio piazzale esterno

- La struttura si presta a molteplici utilizzi, grazie alla sua ampia metratura e alla disposizione degli spazi interni.

- Situato in una posizione strategica, l'immobile è facilmente accessibile e ben collegato alle principali vie di comunicazione della zona.

Questa proprietà rappresenta un'opportunità interessante per chi desidera investire in un'area con potenziale di sviluppo.

Mostra tutto

Nelle vicinanze

Trasporto pubblico Trasporto pubblico
Feltre
Feltre
1,8 Km
Feltre (Gel. La Zuecca)
Feltre (Gel. La Zuecca)
300 m
Feltre Monumento
Feltre Monumento
730 m
Scuole Scuole
Colotti
970 m
Liceo Classico
1,1 Km
Liceo Scientifico G. Dal Piaz
1,2 Km
ex Liceo Scientifico Luzzo
1,2 Km
Carlo Rizzarda
1,2 Km
Farmacia Farmacia
Farmacia Minciotti
1,1 Km
Farmacia all'ospedale
1,3 Km
Farmacia Ricci
1,8 Km
Farmacia
2,5 Km
Farmacia Pez
2,8 Km
Ospedali Ospedali
Ex casa di cura Villabruna Bellati
1,2 Km
Ospedale Civile
1,5 Km
Ospedale Santa Maria del Prato
1,5 Km
Pronto Soccorso Ospedale Civile Feltre
1,6 Km
Supermercati Supermercati
Famila
260 m
Kanguro
1,0 Km
Lidl
1,5 Km
Coop
1,7 Km
Prix
2,0 Km
Negozi Negozi
Pasticceria Piaser
790 m
Idea2000
860 m
Negozio per bambini Ambarabacicicoco
870 m
NKD
880 m
La Bottega dell'Helena
940 m
Bar Bar
Bar Le Torri
830 m
Bar La Buca
920 m
Mai dire bar
940 m
Cicchetteria Perbacco
970 m
La mela
980 m
Ristoranti Ristoranti
Il Pavone Ristorante Self Service
930 m
Crash Osteria
1,2 Km
Tiziano
1,2 Km
Crash
1,2 Km
Il Sole di Napoli
1,2 Km
Mostra tutto

Caratteristiche

Rif.:
61174913
Piano:
2 di 2 (Piano terra)
Posti auto:
10
Condizionamento:
Assente
Ascensore:
No
Riscaldamento:
Autonomo
Mostra tutto
Prezzo Prezzo
€ 210.000
Rata mutuo Rata mutuo
€ 997 / mese
Spese annue Spese annue
€ 0
Proponi il tuo prezzoProponi il tuo prezzo

Classe Energetica

Questo immobile è esente da classe energetica
Anno di costruzione:
1960
Riscaldamento:
Autonomo
Tipo impianto:
Ad aria
Tipo alimentazione:
Metano

Ti interessa visionare l'immobile?

Fissa un appuntamento  Fissa un appuntamento

Richiedi informazioni

Clicca su Leggi per aprire l'informativa
* Questi campi sono obbligatori

Calcola il tuo mutuo

Semplice e senza impegno
Anticipo

( % )
Mutuo

( % )

pochi semplici passi

inserisci i tuoi dati
Questionario completato
Grazie per aver richiesto un appuntamento senza impegno con un nostro Consulente del Credito e Assicurativo.

Hai inserito correttamente tutti i dati necessari e a breve riceverai una e-mail con un link da convalidare per inviare i tuoi dati.
Affiliato
Montebelluna Industriale Srl
Via Leonardo Da Vinci, 3 31031 Caerano Di San Marco (TV)

Il nostro staff


  • Edoardo Maria Cunzo
    Responsabile

  • Arianna Damiani
    Collaboratrice

  • Alice Frassetto
    Coordinatrice

  • Silvia Pasetto
    Affiliata
Via Leonardo Da Vinci, 3 31031 Caerano Di San Marco (TV)
Zona: Montebelluna-Valdobbiadene-Asolo-Borso Del Grappa e territori limitrofi
Mostra su mappa
Affiliato
Montebelluna Industriale Srl
Via Leonardo Da Vinci, 3 31031 Caerano Di San Marco (TV)

2026 Tecnocasa Franchising S.p.A. - P. IVA 08365160152 - Via Monte Bianco 60/A 20089 Rozzano (MI). Ogni agenzia ha un proprio titolare ed è autonoma. Privacy policy | Policy utilizzo | Cookie policy