Complesso in vendita

Caerano Di San Marco, Via Montello
€ 300.000
9 locali 9 locali
595 Mq 595 Mq
6 bagni 6 bagni

Complesso in vendita

Caerano Di San Marco, Via Montello

Descrizione annuncio

Proponiamo IN VENDITA complesso commerciale formato da un piano terra ad uso ristorazione, un piano primo adibito affittacamere e un secondo piano ad uso magazzino presso Caerano di San Marco.

CARATTERISTICHE DELL'IMMOBILE.

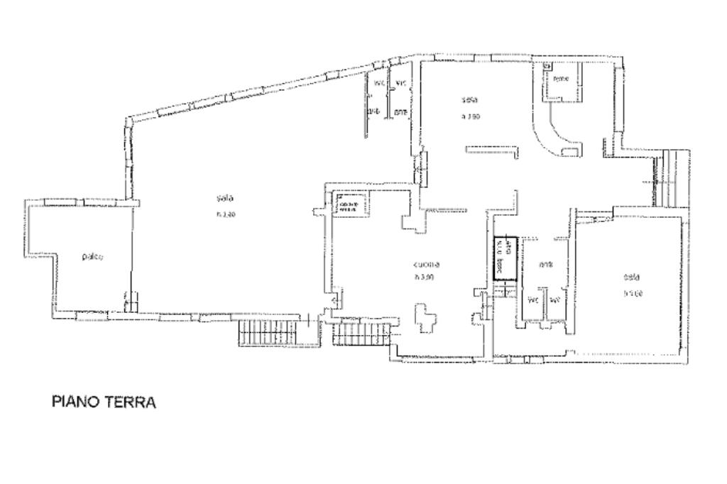
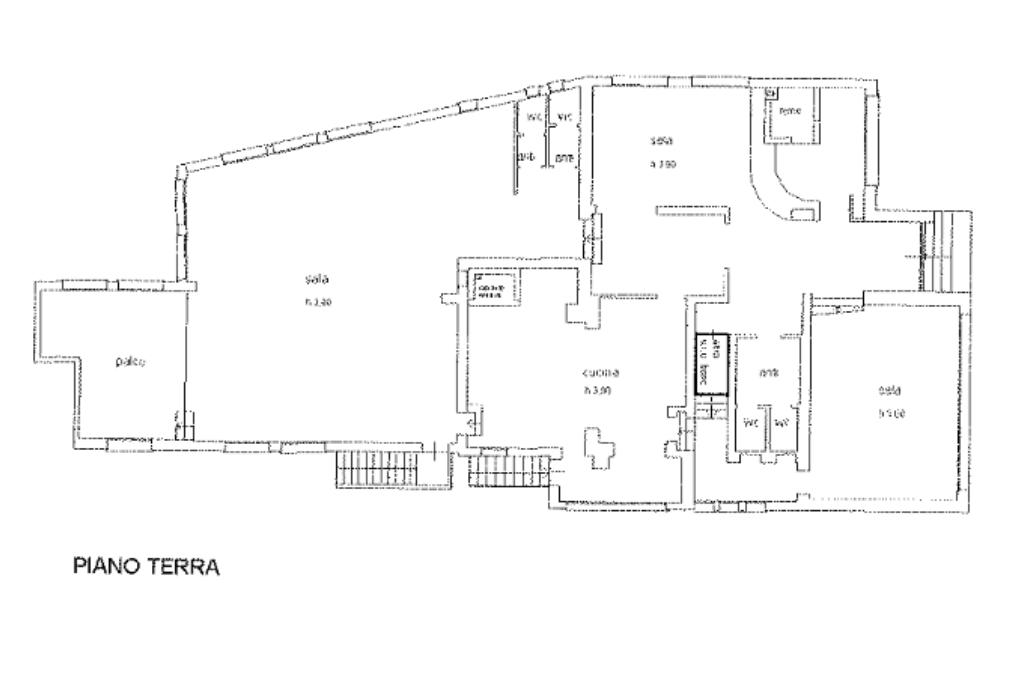
. Al piano terra troviamo:

- Riscaldamento autonomo ad aria

- 1 locale con vetrine fronte strada di grossa percorrenza

- 1 zona cucina con caminetto

- 1 zona bar e pizzeria

- 1 sala grande con predisposizione palchetto

- 4 bagni divisi m/f

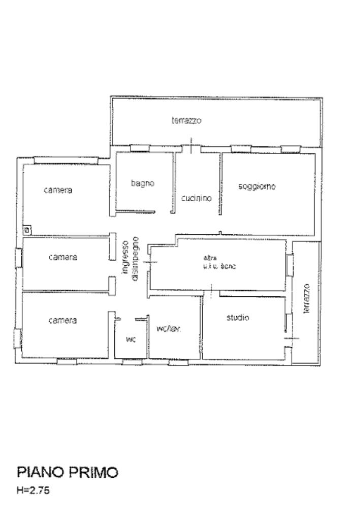
. Al piano primo:

- 3 camere

- zona studio

- 2 servizi

- zona cucina e soggiorno

. All'ultimo piano troviamo:

- 5 spazi adibiti magazzino

- 1 servizio

UBICAZIONE E CONTESTO:

L'immobile si trova fronte strada di grande affluenza che collega Montebelluna a Caerano di San Marco, a pochissimi km possiamo trovarci nei centri ed usufruire dei servizi che le città offrono.

Per ulteriori informazioni non esitate a contattarci!

Mostra tutto

Nelle vicinanze

Trasporto pubblico Trasporto pubblico
Trasporto pubblico
1,3 Km
Ricariche auto elettriche Ricariche auto elettriche
Eurospar Caerano di San Marco | EnelX
1,0 Km
Scuole Scuole
Scuola Primaria "Antonio Canova"
360 m
Scuola Secondaria di secondo grado
670 m
Asilo Nido "Il Girotondo"
770 m
Scuola elementare ''Giovanni Pascoli''
2,0 Km
Scuola dell'infanzia Bortot
2,1 Km
Farmacia Farmacia
Farmacia Caerano
170 m
Farmacie GT
940 m
Farmacia Bassi
2,1 Km
Naturalmente erbe erboristeria
2,4 Km
Farmacia Contea alla Salute
2,5 Km
Ospedali Ospedali
Ospedale Civile di Montebelluna San Valentino
2,4 Km
Ospedale Vecchio di Montebelluna
2,6 Km
Supermercati Supermercati
Crai
550 m
Maxi supermercati
550 m
D più discount
790 m
Eurospar
1,0 Km
iN's
1,1 Km
Negozi Negozi
Antico forno
320 m
Factory Store Diadora
450 m
Modigliani
480 m
Negozi
490 m
Serra
530 m
Bar Bar
Cafè Nero
320 m
Bar Sport
360 m
Alle Buone Abitudini
380 m
Bar Amico
400 m
Vendra Cafè
470 m
Ristoranti Ristoranti
Ristorante Pizzeria La Torre
260 m
Pizzeria San Marco
430 m
Osteria da Caramea
570 m
Pizzeria Il Ciliegio
820 m
Ristorante Futuro Wok Sushi
1,0 Km
Mostra tutto

Caratteristiche

Rif.:
61095281
Piano:
2 di 3 (Piano su più livelli)
Posti auto:
10
Condizionamento:
Assente
Ascensore:
No
Riscaldamento:
Autonomo
Mostra tutto
Prezzo Prezzo
€ 300.000
Rata mutuo Rata mutuo
€ 1.387 / mese
Proponi il tuo prezzoProponi il tuo prezzo

Altre caratteristiche

Descrizione dei locali
Bagno antibagno

Classe Energetica

Questo immobile è esente da classe energetica
Anno di costruzione:
1991
Riscaldamento:
Autonomo
Tipo impianto:
Ad aria
Tipo alimentazione:
Metano

Ti interessa visionare l'immobile?

Fissa un appuntamento  Fissa un appuntamento

Richiedi informazioni

* Questi campi sono obbligatori

Calcola il tuo mutuo

Semplice e senza impegno
Anticipo

( % )
Mutuo

( % )

pochi semplici passi

inserisci i tuoi dati
Questionario completato
Grazie per aver richiesto un appuntamento senza impegno con un nostro Consulente del Credito e Assicurativo.

Hai inserito correttamente tutti i dati necessari e a breve riceverai una e-mail con un link da convalidare per inviare i tuoi dati.
Affiliato
Montebelluna Industriale Srl
Prossima Apertura, 31044 Montebelluna (TV)
Prossima Apertura, 31044 Montebelluna (TV)
Zona: Montebelluna-Valdobbiadene-Asolo-Borso Del Grappa e territori limitrofi
Mostra su mappa
Affiliato
Montebelluna Industriale Srl
Prossima Apertura, 31044 Montebelluna (TV)

2025 Tecnocasa Franchising S.p.A. - P. IVA 08365160152 - Via Monte Bianco 60/A 20089 Rozzano (MI). Ogni agenzia ha un proprio titolare ed è autonoma. Privacy policy | Policy utilizzo | Cookie policy